Description
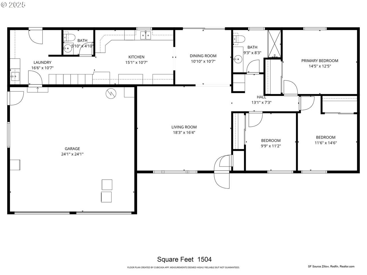
The convenience on one level living. One owner custom-built 2003 ranch style home with cover porch. Three bedrooms and 1.5 baths. The large pass-through kitchen is the center of the home, offering solid wood cabinetry, a large pantry space, attached laundry room and half bath. The open living and dining areas boast newer Laminate flooring. The dining room opens to an expansive, 10ft x 44ft, covered patio, perfect for outdoor entertaining. The home is situated on just under a half-acre with a large, 40ft x 30ft (1,200 square foot) shop with lofted area and office space with a second half bath. The oversized role up door provides a twelve-foot clearance. The lot and yard are fully fenced.
-
3BEDS
-
0.46ACRES
-
1BATHS
-
11/2 BATHS
-
1,504SQFT
-
$329$/SQFT
School Information
Description
The convenience on one level living. One owner custom-built 2003 ranch style home with cover porch. Three bedrooms and 1.5 baths. The large pass-through kitchen is the center of the home, offering solid wood cabinetry, a large pantry space, attached laundry room and half bath. The open living and dining areas boast newer Laminate flooring. The dining room opens to an expansive, 10ft x 44ft, covered patio, perfect for outdoor entertaining. The home is situated on just under a half-acre with a large, 40ft x 30ft (1,200 square foot) shop with lofted area and office space with a second half bath. The oversized role up door provides a twelve-foot clearance. The lot and yard are fully fenced.
Listing content is copyright © 2025 RMLS™, Portland, Oregon. The content relating to real estate for sale on this web site comes in part from the IDX program of the RMLS™ of Portland, Oregon. Real estate listings held by brokerage firms other than The Place Portland Team | Windermere Realty Trust are marked with the RMLS™ logo, and detailed information about these properties includes the names of the listing brokers. Data last updated 2025-12-06T15:49:32.057.Data deemed reliable but not guaranteed. Some properties which appear for sale on this web site may subsequently have sold or may no longer be available. IDX information is provided exclusively for consumers’ personal, non-commercial use, and may not be used for any purpose other than to identify prospective properties consumers may be interested in purchasing. All information provided is deemed reliable but is not guaranteed accurate by RMLS™ or The Place Portland Team | Windermere Realty Trust and should be independently verified.

Listing provided courtesy of Windermere Northwest Living: 503-334-7406.